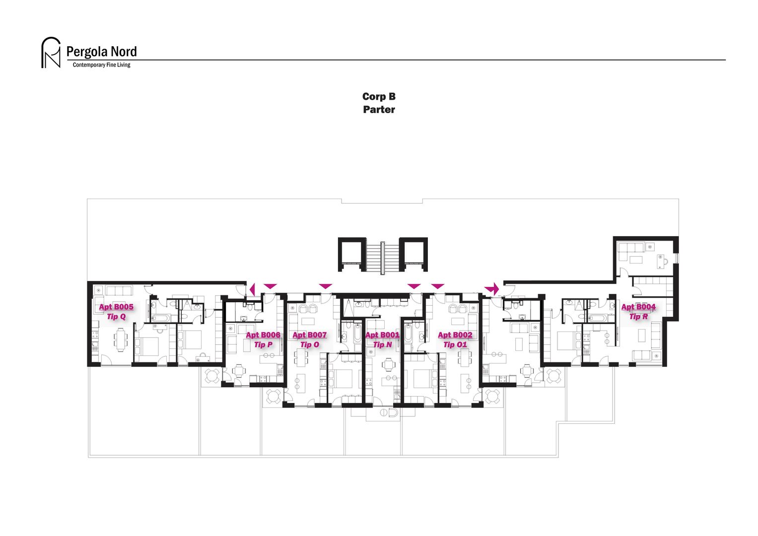
ID CP2261100

Apartament Tip O1, parter

ID CP2261100
Apartament cu 2 camere de vânzare
Pipera, Bucuresti
56.4 mp
2026
  • Tip apartament
    Apartament
  • Număr camere
    2
  • Dormitoare
    1
  • Număr bucătării
    1
  • Număr băi
    1
  • Etaj
    Parter
  • Suprafață utilă
    56.4 mp
  • Suprafață construită
    69.4 mp
  • Disponibilitate
    2026
  • Orientare
    Est
  • Stare interior
    Finisat modern
  • Anul finisării
    2026
  • Număr balcoane
    1
  • Imobil
    Bloc de apart.
  • Stadiu construcție
    În construcție
  • An construcție
    2026
  • Construcție nouă
    Da
  • De la dezvoltator
    Da
  • Tip construcție
    Beton
  • Număr etaje clădire
    6
  • Număr etaje retrase
    1
  • Număr subsoluri
    2

Facilități

Acces pentru persoane cu dizabilități
Apă
Apometre
Bucătărie deschisă
Cadă
Canalizare
CATV
Centrală imobil
Contor căldură
Contor electric
Curent
Curent trifazic (380V)
Curte comună
Debara
Facilități sportive
Faianță
Ferestre care se deschid
Ferestre PVC
Fitness
Garaj subteran
Gaz
Geamuri cu izolație fonică
Geamuri termopan
Grădină proprie
Iluminat stradal
Încălzire prin pardoseală
Interfon
Internet
Izolație exterioară
Lift
Loc de joacă copii
Mijloace de transport în comun
Nemobilat
Parcare biciclete
Parchet laminat
Șapă
Străzi asfaltate
Telecomandă poartă garaj
Telefon
Ușă intrare metal
Uscătorie
Uși interior celulare
Videointerfon
Vopsea lavabilă
Oana Ivan

0737158640


Solicită chiar acum o vizionare
Nume
Telefon
Email
Sună acum Solicită vizionare
Necesare:

Site-ul nu poate funcționa corect fără aceste cookie-uri. Vezi cookie-urile

Statistică:

Strângem statistici anonime despre voi, vizitatorii unici, pentru a vă îmbunătăți experiența dumneavoastră. Vezi cookie-urile

Marketing:

Pentru a ne promova mai eficient serviciile noastre, folosim cookies pentru a vă identifica și a vă oferi proprietăți și servicii personalizate. Vezi cookie-urile

Acest site folosește cookies, află detalii. Alege ce tipuri de cookies dorești să permitem: